Building a padel tennis court that meets FIP standards requires strict adherence to official dimensions (20m x 10m), specific material certifications for glass and turf, and precise lighting lux levels.
Many sports club owners invest significant capital into facilities only to realize their courts fail to meet international regulations, leading to safety hazards and player dissatisfaction. This mistake can ruin your brand’s reputation and prevent you from hosting official tournaments, effectively wasting your investment. By prioritizing a FIP standard padel court, you ensure a professional-grade environment that guarantees longevity, safety, and elite playability for your members.
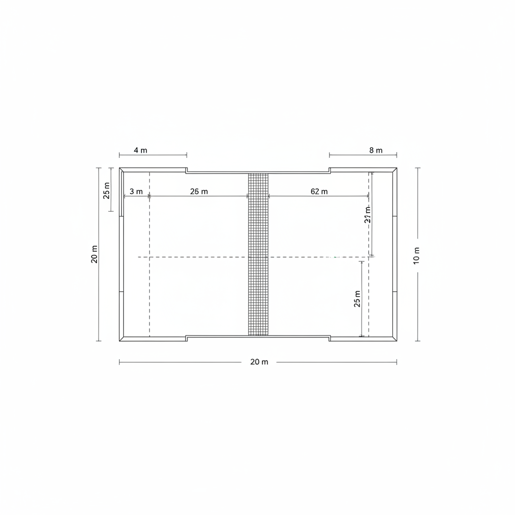
1. What are the dimensions for a FIP standard padel court?

A professional playing field must measure exactly 20 meters in length and 10 meters in width from the interior. Maintaining these measurements for a FIP standard padel court is non-negotiable for official certification.
Precise boundary marking
The net must have a length of 10 meters and a height of 0.88 meters at the center. You need to ensure the posts do not exceed 1.05 meters in height.
- Total length: 20m.
- Total width: 10m.
- Service line distance: 6.95m from the net.
You might be wondering:
How much margin of error is allowed? FIP allows a tiny 0.5% tolerance, so precision during the groundworks phase is your highest priority.
Key Takeaway: Correct dimensions are the foundation of a court that qualifies for international tournament play.
| Metric | FIP Requirement |
|---|---|
| Length | 20.00 Meters |
| Width | 10.00 Meters |
| Net Center | 0.88 Meters |
Strict adherence to these geometric specs ensures that the ball dynamics remain consistent across all professional venues.
2. Where can you build a FIP standard padel court?

You must install the court on a perfectly leveled, hardened surface like reinforced concrete or porous asphalt. Choosing the right site for your FIP standard padel court ensures the structural anchors remain stable for years.
Foundation and drainage needs
For outdoor installations, a slight slope of approximately 1% is required to facilitate water runoff. You should also consider the orientation, ideally North-South, to prevent the sun from blinding players during matches.
- Reinforced concrete thickness: 15cm minimum.
- Orientation: North-South.
- Drainage: Mandatory for outdoor courts.
The best part is:
A solid foundation prevents the tempered glass from shifting, which is a major safety risk. You can learn more about site preparation in our construction guide.
Key Takeaway: A level and well-drained foundation protects your court structure from environmental damage and shifts.
| Site Element | Standard |
|---|---|
| Surface Type | Reinforced Concrete |
| Slope | 1% (Outdoor only) |
| Alignment | North-South |
Without a proper base, the structural integrity of the metallic frame and glass panels will eventually be compromised.
3. Which glass is used for a FIP standard padel court?

FIP regulations mandate the use of tempered safety glass with a thickness of either 10mm or 12mm. Utilizing certified glass for your FIP standard padel court ensures that the walls can withstand high-velocity ball impacts and player collisions.
Safety glass certifications
The glass must comply with the EN 12150-2 standard to ensure it breaks into small, blunt pieces if shattered. You should prioritize 12mm glass for professional settings as it offers superior rebound consistency and structural rigidity.
- Standard: EN 12150-2.
- Thickness: 10mm or 12mm.
- Mounting: Sunk-head screws for a flush surface.
But here is the kicker:
Not all tempered glass is equal; the polishing of the edges is vital to prevent spontaneous breakage. You want your players to feel safe leaning against the walls during intense rallies.
Key Takeaway: Certified 12mm tempered glass is the industry gold standard for safety and professional ball rebound.
| Glass Property | FIP Spec |
|---|---|
| Certification | EN 12150-2 |
| Thickness | 12mm (Preferred) |
| Mounting | Flush |
High-quality glass provides the 360-degree visibility spectators expect while maintaining the required impact resistance.
4. How to select steel for a FIP standard padel court?

You should use hot-dip galvanized steel for the framework to prevent rust and corrosion. The structural frame of a FIP standard padel court must be robust enough to handle wind loads and the weight of the heavy glass panels.
Anti-corrosion and stability
The steel pillars are typically 100x50mm or 80x80mm with a thickness of at least 3mm. You must ensure the finish is an electrostatic powder coating, which provides a professional look and an extra layer of protection.
- Material: Q235 Carbon Steel.
- Treatment: Hot-dip galvanization.
- Finish: Powder coated.
It gets better:
A modular frame design allows you to replace individual sections easily if damage occurs. You should always check that the welding points are treated to prevent “bleeding” rust over time.
Key Takeaway: Galvanized and powder-coated steel is essential for long-term durability, especially in humid or coastal environments.
| Component | Material |
|---|---|
| Pillars | Q235 Steel |
| Treatment | Hot-dip Galvanized |
| Pillar Size | 100mm x 50mm |
Investing in high-grade steel ensures the court remains upright and safe even during extreme weather events like high winds.
5. What turf works for a FIP standard padel court?

Professional courts use monofilament or fibrillated artificial turf with a height between 10mm and 12mm. Choosing high-density turf for your FIP standard padel court guarantees a consistent ball bounce and reduces the risk of player injury.
Turf density and infill
The turf must be filled with kiln-dried silica sand to ensure the fibers stay upright and provide the necessary grip. You should look for a high Dtex rating, which indicates the durability and thickness of the grass fibers.
- Pile height: 10-12mm.
- Infill: Silica sand (rounded).
- Color: Blue (Tournament standard).
You might be wondering:
Why is blue the standard? While green is traditional, blue offers the best contrast for the yellow ball, which is crucial for televised matches and player reaction times.
Key Takeaway: High-density monofilament turf with silica sand infill provides the elite playing surface required for fast-paced games.
| Turf Metric | Specification |
|---|---|
| Material | Polyethylene (PE) |
| Height | 12mm |
| Sand Type | 0.4-0.8mm Silica |
The quality of the turf directly affects the “speed” of the court and the health of the players’ joints.
6. What lighting fits a FIP standard padel court?

You must install LED lighting that provides a minimum of 300 lux for recreational play and 500 lux for professional tournaments. Proper illumination for a FIP standard padel court must be uniform and free from glare to allow players to track the ball at high speeds.
LED lux levels and optics
The lighting poles should be at least 6 meters high and positioned outside the playing area to avoid being a hazard. You should use asymmetric optics to ensure the light is directed onto the court surface rather than into the players’ eyes.
- Recreational lux: 300.
- Competition lux: 500+.
- Waterproof rating: IP66.
Here is the deal:
Flicker-free LEDs are mandatory if you plan to record or broadcast matches. You should also ensure the lights reach full brightness instantly to avoid delays during evening sessions.
Key Takeaway: Professional LED lighting with 500+ lux and asymmetric optics is essential for visibility and broadcasting quality.
| Level | Lux Required |
|---|---|
| Recreational | 300 Lux |
| Tournament | 500 Lux |
| Broadcast | 750+ Lux |
Uniform lighting prevents shadows that can confuse players and makes the venue look significantly more premium at night.
7. Why is mesh vital for a FIP standard padel court?

The fencing must consist of electro-welded wire mesh with a thickness of 4mm and a grid size of 50x50mm. Installing high-quality mesh on your FIP standard padel court ensures predictable rebounds and prevents the ball from getting stuck.
Mesh tension and safety
FIP standards require that the mesh is flush with the internal face of the pillars to prevent player injury. You must ensure the mesh is rigid enough that it does not deform significantly when a player or ball hits it.
- Wire diameter: 4mm.
- Aperture: 50mm x 50m.
- Folding: Anti-injury edges.
But wait, there’s more:
The mesh is where the “cage” play happens. You need to verify that the tension is consistent across all panels so that the ball doesn’t “die” when hitting certain spots.
Key Takeaway: Rigidity and flush mounting of 4mm electro-welded mesh are critical for both fair play and player safety.
| Mesh Detail | Requirement |
|---|---|
| Wire Thick | 4mm |
| Grid Size | 50x50mm |
| Alignment | Flush to interior |
Correct mesh installation distinguishes a professional club from a DIY setup where ball bounces are unpredictable.
8. How to design a panoramic FIP standard padel court?

You should remove the vertical structural pillars in the glass corners to create a 360-degree unobstructed view. A panoramic FIP standard padel court is the preferred choice for center courts where spectators and cameras need a clear line of sight.
Panoramic structural stability
Because you are removing steel supports, you must use 12mm tempered glass to maintain the required structural integrity. You should also ensure the bottom beam is reinforced to compensate for the lack of vertical posts in the corners.
- View: 100% Unobstructed.
- Glass: 12mm minimum.
- Aesthetic: Elite/Luxury.
Now, you might be wondering:
Is it as safe as a standard court? Yes, provided you use high-tensile steel for the remaining supports. It creates an immersive atmosphere that players love and venues can charge a premium for.
Key Takeaway: Panoramic designs offer the best spectator experience and represent the modern evolution of the sport.
| Feature | Panoramic Advantage |
|---|---|
| Visibility | Total 360° |
| Video | Camera Friendly |
| Status | Premium Tier |
While slightly more expensive, the panoramic model is the standard for any club looking to host professional tours.
9. How to maintain a FIP standard padel court?

You must brush the artificial turf weekly to redistribute the silica sand and prevent the fibers from matting down. Regular maintenance of your FIP standard padel court doubles its lifespan and keeps the playing conditions consistent.
Brushing and glass care
You should use a specialized court brush to move the sand from the edges back toward the center where play is heaviest. You also need to clean the glass panels monthly with non-abrasive cleaners to keep the facility looking pristine and professional.
- Brushing: Weekly.
- Glass cleaning: Monthly.
- Bolt check: Quarterly.
Think about it:
Compacted sand makes the court slippery and dangerous. You should also check the net tension monthly, as it naturally loosens with use and impacts the game’s fairness.
Key Takeaway: Routine brushing and structural checks prevent costly repairs and maintain the court’s “new” feel for years.
| Task | Frequency |
|---|---|
| Sand Brushing | Weekly |
| Net Tensioning | Monthly |
| Deep Cleaning | Annually |
A well-maintained court shows players that you value quality, encouraging them to return and treat the facility with respect.
10. Who provides certification for a FIP standard padel court?

You need to work with manufacturers whose materials and construction methods have been audited and approved by the International Padel Federation. Obtaining certification for a FIP standard padel court requires a final on-site inspection of dimensions, glass safety, and lighting levels.
The audit and documentation process
You must keep all manufacturer certificates, including glass impact test results and steel galvanization reports, for the audit. Once the court passes the dimension and safety checks, it can be officially listed for professional tournament use.
- Documents: Impact tests, Material COAs.
- Audit: Dimensional verification.
- Approval: Official FIP seal.
The bottom line?
Certification increases your club’s property value and allows you to attract sponsors for sanctioned events. You should always demand these documents from your supplier before the first shovel hits the ground.
Key Takeaway: Official FIP certification is the ultimate proof of quality and a prerequisite for any serious padel club.
| Step | Action Required |
|---|---|
| Planning | Check FIP Standards |
| Sourcing | Demand Certificates |
| Finality | Post-Install Audit |
Certification ensures that every player, from amateur to pro, experiences the game exactly as intended by the sport’s governing body.
*
Recapping the Path to Excellence
Building a professional facility requires precision across dimensions, materials, and safety standards. By focusing on 12mm tempered glass, galvanized steel, and high-density monofilament turf, you create a court that meets the most rigorous international requirements. Contact us today to begin your journey toward a world-class padel project. Our vision is to empower club owners with the highest-quality infrastructure, turning local clubs into international benchmarks for the sport.
Frequently Asked Questions
Can I build a FIP standard padel court in my backyard?
It is definitely possible, provided you have a level reinforced concrete base and meet the 20x10m interior dimensions.
What is the minimum ceiling height for an indoor court?
FIP requires a minimum height of 6 meters, though 8 meters is highly recommended for professional-level lobs.
Can I use 10mm glass instead of 12mm?
Yes, FIP allows 10mm glass, but 12mm is the preferred professional standard for better bounce and safety.
What is the most common turf color?
While blue is the standard for official tournaments, green and terracotta are also FIP-approved options.
How long does installation typically take?
Once the foundation is cured, a professional team can usually install the structure in 7 to 10 days.